Bihar Plot Map
Official record of plot boundaries and details for Bihar properties

Overview
A Plot Map is a cadastral map that shows the precise shape, boundary, and layout of a land parcel (plot) as recorded in revenue records.
A plot map offers layout clarity and supports the property owners and prospective buyers in the following cases:
Confirm plot boundaries, area, and shape before purchase
Detect boundary disputes or encroachments visually
Support title due diligence alongside RoR, EC, and sale deed
Useful in legal, municipal, or survey proceedings
Required for some zoning, construction, or land development plans
A plot map offers layout clarity and supports the property owners and prospective buyers in the following cases:
Confirm plot boundaries, area, and shape before purchase
Detect boundary disputes or encroachments visually
Support title due diligence alongside RoR, EC, and sale deed
Useful in legal, municipal, or survey proceedings
Required for some zoning, construction, or land development plans
Use cases
Why Landeed?
Free searches *
Guaranteed document delivery
24/7 Customer support
Soft copy and hard copy
All day access
FAQs
Why do I need a plot map?
Why do I need a plot map?
A plot map offers layout clarity and supports the property owners and prospective buyers in the following cases:
- Confirm plot boundaries, area, and shape before purchase
- Detect boundary disputes or encroachments visually
- Support title due diligence alongside RoR, EC, and sale deed
- Useful in legal, municipal, or survey proceedings
- Required for some zoning, construction, or land development plans
Where Is the Plot Map Used?
Where Is the Plot Map Used?
- Revenue / cadastral offices for verification & land settlement
- Survey / mapping departments in infrastructure or land development
- Buyers & due diligence firms for boundary checks
- Courts in land dispute cases
- Architects / engineers / urban planners when planning construction
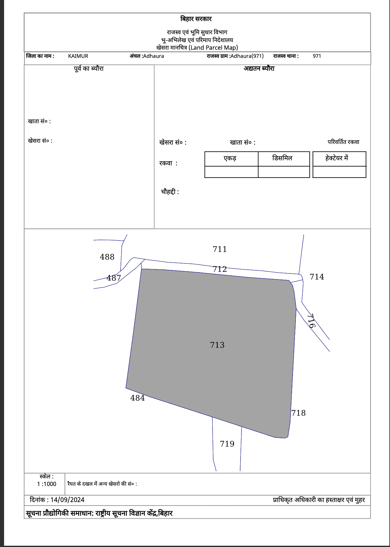
What details are shown in a Bihar plot map extract?
What details are shown in a Bihar plot map extract?
A plot map / map extract may include:
- Plot boundary lines, shape and orientation
- Map / sheet number and survey/cadastral reference
- Adjacent plots and neighboring layout
- Scale, north arrow, and map legend
- Linked Khasra / khata numbers
Is the map proof of ownership?
Is the map proof of ownership?
No. A plot map shows spatial layout and geometry, not legal title. It must be used in conjunction with RoR, sale deed, mutation, and encumbrance certificate to establish full legal status.
How long does it take to get my plot map
How long does it take to get my plot map
With Landeed, you can get your plot map within a day
Need some help?
Get Support

Bihar Plot Map
Official record of plot boundaries and details for Bihar properties
- Confirm plot boundaries, area, and shape before purchase
- Support title due diligence alongside RoR, EC, and sale deed
- Required for zoning, construction, or land development plans
Explore Bihar Property Documents
Find Deeds, Titles, and More – All in One Convenient Place
